横浜市西区元久保町 新築一戸建ての物件詳細
| 販売価格 | 所在地/交通 | 土地面積/間取 |
|---|---|---|
| 4,013万円(税込) | 横浜市西区元久保町 |
87.88m²(26.58坪) 3LDK |
【横浜市西区元久保町の新築一戸建ての物件概要】
| 所在地 | 横浜市西区元久保町 | ||
|---|---|---|---|
| 交通 | 横須賀線「保土ヶ谷駅」 徒歩10分 | ||
| 交通2 | 相模鉄道本線「西横浜駅」 徒歩18分 | ||
| 交通3 | 相模鉄道本線「天王町駅」 徒歩20分 | ||
| 総戸数 | 販売戸数 | ||
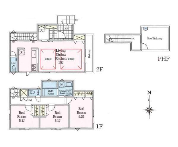
| 土地面積 | 87.88m²(26.58坪) | 建物面積 | 93.78m²(28.37坪) |
| 間取り | 3LDK | 建物構造 | 木造2階建て |
| 間取詳細 | |||
| 築年月 | 2026年4月築 | 用途地域 | 第二種中高層住居専用地域 |
| 私道面積 | 11.51m² | 接道状況 | 一方 北西2.8m |
| 容積率 | 150% | 建ぺい率 | 60% |
| 駐車場 | 現況 | 完成済 | |
| 引渡時期 | 相談 | 土地権利 | 所有権 |
| 小学校区 | 距離:500 m | 中学校区 | 距離:450 m |
| 設備 | 都市ガス 、公営水道 、排水(下水) | 建築確認番号 | 第2025SBC-確00731Y号 |
| 取引態様 | 媒介 | 物件番号 | 111769067001 |
| 備考 | 地盤調査書有;2沿線以上利用可;階建 2階建;日当り良好;LDK広さ 18帖以上;上水道 公営;汚水 下水道;ガス 都市ガス;フローリング;複層ガラス;リビング階段;24時間換気システム;床暖房;全居室収納;クローゼット;シューズボックス;床下収納;システムキッチン;カウンターキッチン;ガスコンロ;コンロ口数 三口;食器洗乾燥機;浄水器;独立洗面台;シャンプードレッサー;オートバス;追い焚き;浴室に窓;浴室乾燥機;トイレ2ヶ所;温水洗浄便座;バルコニー バルコニー有;ルーフバルコニー;全居室複層ガラス;TVインターホン;カードキー;火災警報器(報知機);小学校 徒歩10分以内物件シート備考:全2棟(2号棟) 設備負担金含む 備考_300文字:全2棟(2号棟) 設備負担金含む コピー元備考:全2棟(2号棟) 設備負担金含む | ||
| 特記事項 | |||
お支払い例この物件を購入した場合の月々の支払い価格の一例です。
※元利金等方式 金利0.975%の場合 ※返済年数35年として算出しています。
※金融機関の審査によりご利用頂けない場合もあります。詳しくは担当までお尋ね下さい。
この物件についてのお問い合わせはこちらから!
すぐに知りたい方はお電話でTel.0120-53-5555 営業時間9:30~20:30 毎週水曜、第1・3火曜定休
周辺環境
横浜市西区の街情報
横浜市西区は、横浜市の中で面積・人口が最も小さな区です。 JRと私鉄、地下鉄合わせて611路線が乗り入れる巨大ターミナル駅の「横浜駅」を有し、首都圏有数の商業地帯としての顔を持つ一方、下町情緒の残る地域があり、都市的な地域と歴史ある街並みが共存したエリアといえます。毎日の買い物に便利なスーパーも駅近くに多数あり、また深夜まで営業している店舗もあるため帰りが遅くなったときでも買い物が可能です。

横浜市西区の行政事情(横浜市西区ホームページへ)
| ごみ | 家庭ごみ回収 | 無料 |
|---|---|---|
| 資源ごみ回収奨励制度 | ○ | |
| 育児・出産 | 妊娠・出産に関する助成金 | ○ |
| 小児医療費助成 | 0歳~中学3年生 | |
| 児童手当 | 高校3年生まで(18歳到達後最初の3月31日まで) | |
| 保育所待機児童数 | 0人※令和6年4月現在 | |
| 私立幼稚園入園料・保育用補助金 | ○ | |
| 学童クラブ対象学年 平日・土曜実施時間 |
小学校1年生から6年生まで。 基本平日は午後7時まで、土曜日は午前8時~午後7時30分まで。 ※各施設により異なる |
|
| 教育資金金融/奨学金制度 | ○ | |
| 福祉 | 健康診断/ガン診断 | 関連情報はこちら |
| 介護保険料基準額 | 6,620円 | |
| 高齢者福祉他特色 | 関連情報はこちら |
この物件についてのお問い合わせはこちらから!
すぐに知りたい方はお電話でTel.0120-53-5555 営業時間9:30?20:30 毎週水曜、第1・3火曜定休
「横浜市西区」「保土ヶ谷駅」の条件で他の物件を探す
現在の掲載物件数
総物件数13,268件
一般公開1,651件 会員限定11,617件
| 新築一戸建て | 2,702件 |
|---|---|
| 中古一戸建て | 3,724件 |
| 土地 | 242件 |
| マンション | 6,600件 |
| 投資・事業用 | 0件 |
現地販売会のお知らせ















