横浜市泉区和泉が丘2丁目 新築一戸建ての物件詳細
| 販売価格 | 所在地/交通 | 土地面積/間取 |
|---|---|---|
| 3,985万円(税込) | 横浜市泉区和泉が丘2丁目 |
125.21m²(37.88坪) 3SLDK |
【横浜市泉区和泉が丘2丁目の新築一戸建ての物件概要】
| 所在地 | 横浜市泉区和泉が丘2丁目 | ||
|---|---|---|---|
| 交通 | 横浜ブルーライン「立場駅」 徒歩19分 | ||
| 交通2 | 横浜ブルーライン「下飯田駅」 徒歩19分 | ||
| 交通3 | 相模鉄道いずみ野線「いずみ中央駅」 徒歩22分 | ||
| 総戸数 | 販売戸数 | ||
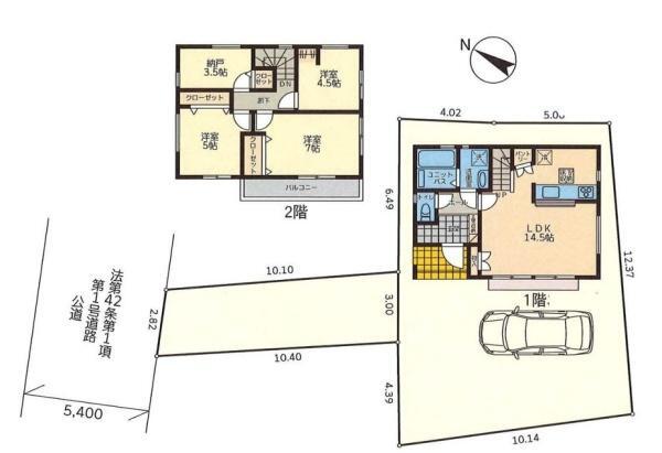
| 土地面積 | 125.21m²(37.88坪) | 建物面積 | 79.58m²(24.07坪) |
| 間取り | 3SLDK | 建物構造 | 木造2階建て |
| 間取詳細 | |||
| 築年月 | 2026年4月築 | 用途地域 | 第一種低層住居専用地域 |
| 私道面積 | 接道状況 | 一方 北西5.4m |
|
| 容積率 | 100% | 建ぺい率 | 50% |
| 駐車場 | あり | 現況 | 建築中 |
| 引渡時期 | 相談 | 土地権利 | 所有権 |
| 小学校区 | 距離:640 m | 中学校区 | 距離:320 m |
| 設備 | 都市ガス 、公営水道 、排水(下水) | 建築確認番号 | 第25KAK建確02380号 |
| 取引態様 | 媒介 | 物件番号 | 111750848001 |
| 備考 | 地盤調査書有;2沿線以上利用可;階建 2階建;全室2面採光;上水道 公営;汚水 下水道;ガス 都市ガス;フローリング;全居室フローリング;複層ガラス;リビング階段;24時間換気システム;全居室収納;納戸;クローゼット;シューズボックス;床下収納;システムキッチン;カウンターキッチン;ガスコンロ;コンロ口数 三口;パントリー;浄水器;独立洗面台;シャンプードレッサー;オートバス;追い焚き;TV付バス;浴室に窓;浴室乾燥機;温水洗浄便座;バルコニー バルコニー有;全居室複層ガラス;TVインターホン;火災警報器(報知機);小学校 徒歩10分以内備考_80文字:カースペース有 共有地29.34平米×1/2別途あり 物件シート備考:カースペース有 共有地29.34平米×1/2別途あり 備考_300文字:カースペース有 共有地29.34平米×1/2別途あり コピー元備考:カースペース有 共有地29.34平米×1/2別途あり | ||
| 特記事項 | |||
お支払い例この物件を購入した場合の月々の支払い価格の一例です。
※元利金等方式 金利0.975%の場合 ※返済年数35年として算出しています。
※金融機関の審査によりご利用頂けない場合もあります。詳しくは担当までお尋ね下さい。
この物件についてのお問い合わせはこちらから!
すぐに知りたい方はお電話でTel.0120-53-5555 営業時間9:30~20:30 毎週水曜、第1・3火曜定休
周辺環境
横浜市泉区の街情報
横浜市泉区は横浜市の南西部に位置し、農地面積が市内で最も広く農業が盛んな地域です。 区内を走る相鉄いずみ野線・横浜市営地下鉄ブルーラインの沿線駅周辺には、様々な商店や大型商業施設があります。 泉区のシンボルとされている「神奈川県立境川遊水地公園」は生息する生き物も多いため自然にふれあうことができます。

横浜市泉区(公式ホームページへ)
| ごみ | 家庭ごみ回収 | 無料 |
|---|---|---|
| 資源ごみ回収奨励制度 | ○ | |
| 育児・出産 | 妊娠・出産に関する助成金 | ○ |
| 小児医療費助成 | 0歳~中学3年生 | |
| 児童手当 | 高校3年生まで(18歳到達後最初の3月31日まで) | |
| 保育所待機児童数 | 0人※令和6年4月現在 | |
| 私立幼稚園入園料・保育用補助金 | ○ | |
| 学童クラブ対象学年 平日・土曜実施時間 |
小学校1年生から6年生まで。 平日は午後7時まで。土曜日は午前8時~19時まで。※各施設により異なる |
|
| 教育資金金融/奨学金制度 | ○ | |
| 福祉 | 健康診断/ガン診断 | 関連情報はこちら |
| 介護保険料基準額 | 6,620円 | |
| 高齢者福祉他特色 | 関連情報はこちら |
この物件についてのお問い合わせはこちらから!
すぐに知りたい方はお電話でTel.0120-53-5555 営業時間9:30?20:30 毎週水曜、第1・3火曜定休
「横浜市泉区」「立場駅」の条件で他の物件を探す
現在の掲載物件数
総物件数12,030件
一般公開1,534件 会員限定10,496件
| 新築一戸建て | 2,242件 |
|---|---|
| 中古一戸建て | 3,760件 |
| 土地 | 232件 |
| マンション | 5,796件 |
| 投資・事業用 | 0件 |
現地販売会のお知らせ














