横須賀市衣笠栄町3丁目 新築一戸建ての物件詳細
| 販売価格 | 所在地/交通 | 土地面積/間取 |
|---|---|---|
| 4,280万円(税込) | 横須賀市衣笠栄町3丁目 |
111.09m²(33.60坪) 4LDK |
【横須賀市衣笠栄町3丁目の新築一戸建ての物件概要】
| 所在地 | 横須賀市衣笠栄町3丁目 | ||
|---|---|---|---|
| 交通 | 横須賀線「衣笠駅」 徒歩5分 | ||
| 交通2 | 京浜急行本線「県立大学駅」 徒歩37分 | ||
| 交通3 | 京浜急行本線「汐入駅」 徒歩38分 | ||
| 総戸数 | 販売戸数 | ||
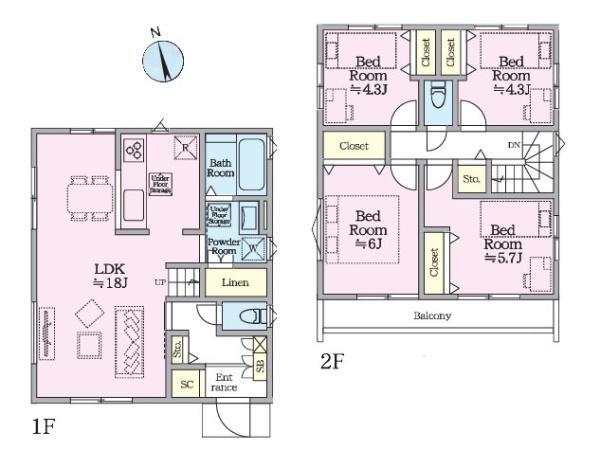
| 土地面積 | 111.09m²(33.60坪) | 建物面積 | 92.74m²(28.05坪) |
| 間取り | 4LDK | 建物構造 | 木造2階建て |
| 間取詳細 | |||
| 築年月 | 2026年4月築 | 用途地域 | 第一種住居地域 |
| 私道面積 | 接道状況 | 一方 南東6m |
|
| 容積率 | 200% | 建ぺい率 | 60% |
| 駐車場 | 2台 | 現況 | 建築中 |
| 引渡時期 | 相談 | 土地権利 | 所有権 |
| 小学校区 | 横須賀市立城北小学校 距離:1000 m | 中学校区 | 横須賀市立衣笠中学校 距離:800 m |
| 設備 | 、公営水道 、排水(下水) | 建築確認番号 | 第25KAK建確02254号 |
| 取引態様 | 媒介 | 物件番号 | 111737293001 |
| 備考 | 地盤調査書有;前道6m以上;2沿線以上利用可;階建 2階建;全室2面採光;LDK広さ 18帖以上;上水道 公営;汚水 下水道;フローリング;全居室フローリング;複層ガラス;駐車可能台数 2台可;リビング階段;24時間換気システム;全居室収納;クローゼット;シューズボックス;シューズインクローゼット;床下収納;システムキッチン;カウンターキッチン;ガスコンロ;コンロ口数 三口;食器洗乾燥機;浄水器;独立洗面台;シャンプードレッサー;オートバス;追い焚き;浴室に窓;浴室乾燥機;トイレ2ヶ所;温水洗浄便座;バルコニー バルコニー有;南面バルコニー;全居室複層ガラス;TVインターホン;火災警報器(報知機)備考_80文字:5棟(5号棟) カースペース2台分有(車種による) 物件シート備考:5棟(5号棟) カースペース2台分有(車種による) 備考_300文字:5棟(5号棟) カースペース2台分有(車種による) コピー元備考:5棟(5号棟) カースペース2台分有(車種による) | ||
| 特記事項 | 敷地延長部分10.32平米含む | ||
お支払い例この物件を購入した場合の月々の支払い価格の一例です。
4,280万円
0万円
0円
円
※元利金等方式 金利0.975%の場合 ※返済年数35年として算出しています。
※金融機関の審査によりご利用頂けない場合もあります。詳しくは担当までお尋ね下さい。
この物件についてのお問い合わせはこちらから!
すぐに知りたい方はお電話でTel.0120-53-5555 営業時間9:30~20:30 毎週水曜、第1・3火曜定休
周辺環境
この物件についてのお問い合わせはこちらから!
すぐに知りたい方はお電話でTel.0120-53-5555 営業時間9:30?20:30 毎週水曜、第1・3火曜定休
条件の近い物件をご紹介します。
「横須賀市」「衣笠駅」の条件で他の物件を探す
現在の掲載物件数
総物件数11,914件
一般公開1,534件 会員限定10,380件
| 新築一戸建て | 2,166件 |
|---|---|
| 中古一戸建て | 3,752件 |
| 土地 | 191件 |
| マンション | 5,805件 |
| 投資・事業用 | 0件 |
現地販売会のお知らせ















