横須賀市公郷町2丁目 新築一戸建ての物件詳細
| 販売価格 | 所在地/交通 | 土地面積/間取 |
|---|---|---|
| 3,690万円(税込) | 横須賀市公郷町2丁目 |
118.97m²(35.99坪) 4LDK |
【横須賀市公郷町2丁目の新築一戸建ての物件概要】
| 所在地 | 横須賀市公郷町2丁目 | ||
|---|---|---|---|
| 交通 | 横須賀線「衣笠駅」 徒歩11分 | ||
| 交通2 | 京浜急行本線「堀ノ内駅」バス12分 公郷2丁目 停歩3分 | ||
| 交通3 | 京浜急行久里浜線「北久里浜駅」 徒歩24分 | ||
| 総戸数 | 販売戸数 | ||
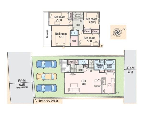
| 土地面積 | 118.97m²(35.99坪) | 建物面積 | 98.94m²(29.93坪) |
| 間取り | 4LDK | 建物構造 | 木造2階建て |
| 間取詳細 | |||
| 築年月 | 2026年6月築 | 用途地域 | 第一種住居地域 |
| 私道面積 | 1.41m² | 接道状況 | 二方 北4m 南4m |
| 容積率 | 160% | 建ぺい率 | 60% |
| 駐車場 | 3台 | 現況 | 建築中 |
| 引渡時期 | 相談 | 土地権利 | 所有権 |
| 小学校区 | 距離:900 m | 中学校区 | 距離:1000 m |
| 設備 | 、公営水道 、排水(下水) | 建築確認番号 | 第2025SBC-確02758H号 |
| 取引態様 | 媒介 | 物件番号 | 111737281001 |
| 備考 | 地盤調査書有;南側道路面す;2沿線以上利用可;階建 2階建;日当り良好;LDK広さ 20帖以上;上水道 公営;汚水 下水道;フローリング;複層ガラス;駐車可能台数 3台以上可;24時間換気システム;クローゼット;ウォークインクローゼット;シューズインクローゼット;システムキッチン;ガスコンロ;コンロ口数 三口;パントリー;浄水器;独立洗面台;シャンプードレッサー;オートバス;追い焚き;浴室乾燥機;トイレ2ヶ所;温水洗浄便座;バルコニー バルコニー有;全居室複層ガラス;TVインターホン;火災警報器(報知機)備考_80文字:カースペース3台分有(車種による) 物件シート備考:カースペース3台分有(車種による) 備考_300文字:カースペース3台分有(車種による) コピー元備考:カースペース3台分有(車種による) | ||
| 特記事項 | |||
お支払い例この物件を購入した場合の月々の支払い価格の一例です。
3,690万円
0万円
0円
円
※元利金等方式 金利0.975%の場合 ※返済年数35年として算出しています。
※金融機関の審査によりご利用頂けない場合もあります。詳しくは担当までお尋ね下さい。
この物件についてのお問い合わせはこちらから!
すぐに知りたい方はお電話でTel.0120-53-5555 営業時間9:30~20:30 毎週水曜、第1・3火曜定休
周辺環境
この物件についてのお問い合わせはこちらから!
すぐに知りたい方はお電話でTel.0120-53-5555 営業時間9:30?20:30 毎週水曜、第1・3火曜定休
条件の近い物件をご紹介します。
「横須賀市」「衣笠駅」の条件で他の物件を探す
現在の掲載物件数
総物件数11,914件
一般公開1,534件 会員限定10,380件
| 新築一戸建て | 2,166件 |
|---|---|
| 中古一戸建て | 3,752件 |
| 土地 | 191件 |
| マンション | 5,805件 |
| 投資・事業用 | 0件 |
現地販売会のお知らせ














