横浜市栄区庄戸3丁目 新築一戸建ての物件詳細
| 販売価格 | 所在地/交通 | 土地面積/間取 |
|---|---|---|
| 5,680万円(税込) | 横浜市栄区庄戸3丁目 |
253.96m²(76.82坪) 4LDK |
【横浜市栄区庄戸3丁目の新築一戸建ての物件概要】
| 所在地 | 横浜市栄区庄戸3丁目 | ||
|---|---|---|---|
| 交通 | 京浜東北線「港南台駅」バス22分 庄戸3丁目南 停歩5分 | ||
| 交通2 | 京浜東北線「本郷台駅」 徒歩55分 | ||
| 交通3 | 京浜東北線「洋光台駅」 徒歩62分 | ||
| 総戸数 | 販売戸数 | ||
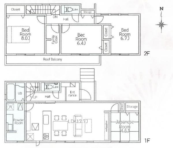
| 土地面積 | 253.96m²(76.82坪) | 建物面積 | 108.67m²(32.87坪) |
| 間取り | 4LDK | 建物構造 | 木造2階建て |
| 間取詳細 | |||
| 築年月 | 2026年5月築 | 用途地域 | 第一種低層住居専用地域 |
| 私道面積 | 接道状況 | 一方 北4.5m |
|
| 容積率 | 60% | 建ぺい率 | 30% |
| 駐車場 | 3台 | 現況 | 建築中 |
| 引渡時期 | 相談 | 土地権利 | 所有権 |
| 小学校区 | 横浜市立庄戸小学校 距離:570 m | 中学校区 | 横浜市立庄戸中学校 距離:2300 m |
| 設備 | 都市ガス 、公営水道 、排水(下水) | 建築確認番号 | 第KS125-3120-52052号 |
| 取引態様 | 媒介 | 物件番号 | 111734565001 |
| 備考 | 長期優良住宅認定通知書有;耐震構造;地盤調査書有;土地広さ 50坪以上;階建 2階建;外壁サイディング;部屋向き 全室南向き;日当り良好;LDK広さ 15帖以上;和室;上水道 公営;汚水 下水道;ガス 都市ガス;フローリング;複層ガラス;駐車可能台数 3台以上可;24時間換気システム;全居室収納;収納スペース;クローゼット;ウォークインクローゼット;シューズボックス;床下収納;システムキッチン;カウンターキッチン;ガスコンロ;コンロ口数 三口;浄水器;独立洗面台;シャンプードレッサー;オートバス;追い焚き;浴室に窓;浴室乾燥機;トイレ2ヶ所;温水洗浄便座;バルコニー バルコニー有;南面バルコニー;ルーフバルコニー;省エネラベル;全居室複層ガラス;TVインターホン;火災警報器(報知機);小学校 徒歩10分以内備考_80文字:カースペース3台分有 物件シート備考:カースペース3台分有 備考_300文字:カースペース3台分有 コピー元備考:カースペース3台分有 | ||
| 特記事項 | |||
お支払い例この物件を購入した場合の月々の支払い価格の一例です。
※元利金等方式 金利0.975%の場合 ※返済年数35年として算出しています。
※金融機関の審査によりご利用頂けない場合もあります。詳しくは担当までお尋ね下さい。
この物件についてのお問い合わせはこちらから!
すぐに知りたい方はお電話でTel.0120-53-5555 営業時間9:30~20:30 毎週水曜、第1・3火曜定休
周辺環境
横浜市栄区の街情報
栄区は横浜市の南端にあり、鎌倉市と接する場所に位置しています。 豊かな自然に恵まれ緑が多い環境にあり、子育て支援が充実しており治安にも優れているため子育て世帯にとって生活しやすいエリアです。 北西地域にJR根岸線が通っており沿線にはやや北よりに位置している本郷駅から乗り換えなしで品川まで約1時間、同じく乗り換えなしで横浜駅まで約30分でアクセスできます。

横浜市栄区の行政事情(横浜市栄区ホームページへ)
| ごみ | 家庭ごみ回収 | 無料 |
|---|---|---|
| 資源ごみ回収奨励制度 | ○ | |
| 育児・出産 | 妊娠・出産に関する助成金 | ○ |
| 小児医療費助成 | 0歳~中学3年生 | |
| 児童手当 | 高校3年生まで(18歳到達後最初の3月31日まで) | |
| 保育所待機児童数 | 0人※令和6年4月現在 | |
| 私立幼稚園入園料・保育用補助金 | ○ | |
| 学童クラブ対象学年 平日・土曜実施時間 |
小学校1年生から6年生まで。 基本平日は午後7時まで、土曜日は午前8時~午後7時30分まで。 ※各施設により異なる |
|
| 教育資金金融/奨学金制度 | ○ | |
| 福祉 | 健康診断/ガン診断 | 関連情報はこちら |
| 介護保険料基準額 | 6,620円 | |
| 高齢者福祉他特色 | 関連情報はこちら |
この物件についてのお問い合わせはこちらから!
すぐに知りたい方はお電話でTel.0120-53-5555 営業時間9:30?20:30 毎週水曜、第1・3火曜定休
条件の近い物件をご紹介します。
「横浜市栄区」「港南台駅」の条件で他の物件を探す
現在の掲載物件数
総物件数11,914件
一般公開1,534件 会員限定10,380件
| 新築一戸建て | 2,166件 |
|---|---|
| 中古一戸建て | 3,752件 |
| 土地 | 191件 |
| マンション | 5,805件 |
| 投資・事業用 | 0件 |
現地販売会のお知らせ















