横浜市港北区新吉田東1丁目 新築一戸建ての物件詳細
| 販売価格 | 所在地/交通 | 土地面積/間取 |
|---|---|---|
| 6,990万円(税込) | 横浜市港北区新吉田東1丁目 |
145.72m²(44.08坪) 4LDK |
【横浜市港北区新吉田東1丁目の新築一戸建ての物件概要】
| 所在地 | 横浜市港北区新吉田東1丁目 | ||
|---|---|---|---|
| 交通 | 横浜グリーンライン「高田駅」 徒歩12分 | ||
| 交通2 | 東急東横線「綱島駅」 徒歩22分 | ||
| 交通3 | 横浜グリーンライン「日吉本町駅」 徒歩21分 | ||
| 総戸数 | 販売戸数 | ||
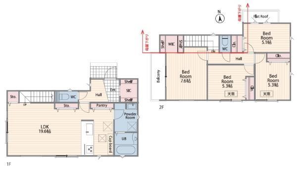
| 土地面積 | 145.72m²(44.08坪) | 建物面積 | 106.82m²(32.31坪) |
| 間取り | 4LDK | 建物構造 | 木造2階建て |
| 間取詳細 | |||
| 築年月 | 2026年7月築 | 用途地域 | 第一種低層住居専用地域 |
| 私道面積 | 接道状況 | 一方 北東5m |
|
| 容積率 | 100% | 建ぺい率 | 60% |
| 駐車場 | 2台 | 現況 | 建築中 |
| 引渡時期 | 相談 | 土地権利 | 所有権 |
| 小学校区 | 横浜市立新吉田第二小学校、横浜市立新吉田小学校 距離:850 m | 中学校区 | 横浜市立新田中学校 距離:500 m |
| 設備 | 都市ガス 、公営水道 、排水(下水) | 建築確認番号 | 第25KAK建確02768号 |
| 取引態様 | 媒介 | 物件番号 | 111732910001 |
| 備考 | 閑静な住宅地;地盤調査書有;駅まで平坦;2沿線以上利用可;階建 2階建;LDK広さ 18帖以上;上水道 公営;汚水 下水道;ガス 都市ガス;フローリング;全居室フローリング;複層ガラス;駐車可能台数 2台可;リビング階段;24時間換気システム;全居室収納;収納スペース;クローゼット;ウォークインクローゼット;シューズインクローゼット;床下収納;システムキッチン;カウンターキッチン;ガスコンロ;コンロ口数 三口;パントリー;浄水器;独立洗面台;シャンプードレッサー;オートバス;追い焚き;浴室に窓;浴室乾燥機;トイレ2ヶ所;温水洗浄便座;バルコニー バルコニー有;全居室複層ガラス;TVインターホン;火災警報器(報知機);スーパー 徒歩10分以内備考_80文字:5区画(宅地2) 路地状部分あり 物件シート備考:5棟(2号棟) 路地状部分あり カースペース2台分有(車種による) 備考_300文字:5棟(2号棟) 路地状部分あり カースペース2台分有(車種による) コピー元備考:5棟(2号棟) 路地状部分あり カースペース2台分有(車種による) | ||
| 特記事項 | |||
お支払い例この物件を購入した場合の月々の支払い価格の一例です。
※元利金等方式 金利0.975%の場合 ※返済年数35年として算出しています。
※金融機関の審査によりご利用頂けない場合もあります。詳しくは担当までお尋ね下さい。
この物件についてのお問い合わせはこちらから!
すぐに知りたい方はお電話でTel.0120-53-5555 営業時間9:30~20:30 毎週水曜、第1・3火曜定休
周辺環境
横浜市港北区の街情報
横浜市港北区は横浜市北東部に位置する人口約35万人の区です。 市内における人口・世帯数が最も多く、新横浜駅を中心にマンションなどの住宅地が広がっています。 新幹線・JR・地下鉄の全6路線を利用できるため都内や地方へも気軽にアクセスでき、子育てにも力を入れていることから子育て世帯にも人気のエリアです。

横浜市港北区の行政事情(横浜市港北区ホームページへ)
| ごみ | 家庭ごみ回収 | 無料 |
|---|---|---|
| 資源ごみ回収奨励制度 | ○ | |
| 育児・出産 | 妊娠・出産に関する助成金 | ○ |
| 小児医療費助成 | 0歳~中学3年生 | |
| 児童手当 | 高校3年生まで(18歳到達後最初の3月31日まで) | |
| 保育所待機児童数 | 1人※令和6年4月現在 | |
| 私立幼稚園入園料・保育用補助金 | ○ | |
| 学童クラブ対象学年 平日・土曜実施時間 |
小学校1年生から6年生まで。 平日は午後7時まで。土曜日は午前8時30分~午後7時まで。※各施設により異なる |
|
| 教育資金金融/奨学金制度 | ○ | |
| 福祉 | 健康診断/ガン診断 | 関連情報はこちら |
| 介護保険料基準額 | 6,620円 | |
| 高齢者福祉他特色 | 関連情報はこちら |
この物件についてのお問い合わせはこちらから!
すぐに知りたい方はお電話でTel.0120-53-5555 営業時間9:30?20:30 毎週水曜、第1・3火曜定休
条件の近い物件をご紹介します。
「横浜市港北区」「高田駅」の条件で他の物件を探す
現在の掲載物件数
総物件数12,030件
一般公開1,534件 会員限定10,496件
| 新築一戸建て | 2,242件 |
|---|---|
| 中古一戸建て | 3,760件 |
| 土地 | 232件 |
| マンション | 5,796件 |
| 投資・事業用 | 0件 |
現地販売会のお知らせ















