藤沢市辻堂1丁目 新築一戸建て
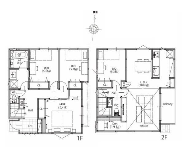
家族団欒のひと時を過ごせる2階LDKプラン。便利なワークスペースあり。居室に使用可能な納戸のある3SLDK。
全2棟(B号棟) カースペース有 路地状部分あり
▼周辺地図
| 物件名 | 藤沢市辻堂1丁目 新築一戸建て |
|---|---|
| 所在地 | 藤沢市辻堂1丁目 |
| 交通 | 東海道本線「辻堂駅」 徒歩7分 |
| 交通2 | 小田急江ノ島線「鵠沼海岸駅」 徒歩35分 |
| 交通3 | 小田急江ノ島線「本鵠沼駅」 徒歩37分 |
| 土地面積 | 104.77m² |
| 建物面積 | 102.94m² |
| 間取り | 3SLDK |
| 建物構造 | 木造2階建て |
| 築年月 | 2026年2月 |
| 間取り詳細 | 1階 5.3帖
1階洋室 5.3帖 1階洋室 7.4帖 2階洋室 5.3帖 2階 18.8帖 |
| 現況 | 完成済 |
| 引渡時期 | 相談 |
| 土地権利 | 所有権 |
| 都市計画 | 市街化区域 |
| 地目 | 宅地 |
| 用途地域1 | 近隣商業地域 |
| 建ぺい率1/容積率1 | 80%/200% |
| 建ぺい率2/容積率2 | / |
| 駐車場 | あり |
| 取引態様 | 媒介 |
| 接道状況 | 一方 |
| 町会費 | |
| その他費用 | |
| 小学校区 | 藤沢市立八松小学校、藤沢市立高砂小学校 距離:240 m |
| 中学校区 | 藤沢市立明治中学校、藤沢市立高浜中学校 距離:1000 m |
| 接道詳細 | 西幅員4m |
| 設備 | 都市ガス 、公営水道 、排水(下水) |
| 備考 | 地盤調査書有;2沿線以上利用可;階建 2階建;LDK広さ 18帖以上;上水道 公営;汚水 下水道;ガス 都市ガス;フローリング;全居室フローリング;複層ガラス;24時間換気システム;全居室収納;納戸;クローゼット;シューズボックス;システムキッチン;カウンターキッチン;ガスコンロ;コンロ口数 三口;浄水器;独立洗面台;シャンプードレッサー;オートバス;追い焚き;浴室に窓;浴室乾燥機;トイレ2ヶ所;温水洗浄便座;バルコニー バルコニー有;全居室複層ガラス;TVインターホン;火災警報器(報知機);小学校 徒歩10分以内備考_80文字:全2棟(B号棟) カースペース有 路地状部分あり 物件シート備考:全2棟(B号棟) カースペース有 路地状部分あり 備考_300文字:全2棟(B号棟) カースペース有 路地状部分あり コピー元備考:全2棟(B号棟) カースペース有 路地状部分あり |