横浜市鶴見区馬場2丁目 新築一戸建て
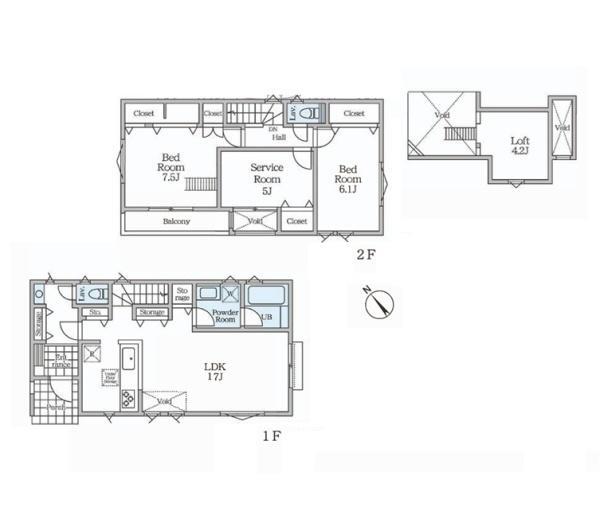
人気のリビングイン階段のあるLDKは家族団欒のひと時を過ごせる空間。収納として使えるロフト付き。
2棟(1号棟) 路地状部分あり
▼周辺地図
| 物件名 | 横浜市鶴見区馬場2丁目 新築一戸建て |
|---|---|
| 所在地 | 横浜市鶴見区馬場2丁目 |
| 交通 | 横浜線「菊名駅」 徒歩22分 |
| 交通2 | 東急東横線「菊名駅」 徒歩22分 |
| 交通3 | 東急東横線「妙蓮寺駅」 徒歩31分 |
| 土地面積 | 103.96m² |
| 建物面積 | 90.04m² |
| 間取り | 2SLDK |
| 建物構造 | 木造2階建て |
| 築年月 | 2026年2月 |
| 間取り詳細 | 1階 17帖
2階洋室 7.5帖 2階 5帖 2階洋室 6.1帖 |
| 現況 | 完成済 |
| 引渡時期 | 相談 |
| 土地権利 | 所有権 |
| 都市計画 | 市街化区域 |
| 地目 | 宅地 |
| 用途地域1 | 第一種低層住居専用地域 |
| 建ぺい率1/容積率1 | 50%/100% |
| 建ぺい率2/容積率2 | / |
| 建築確認番号 | 第2024SBC確01043Y号 |
| 取引態様 | 媒介 |
| 接道状況 | 一方 |
| 町会費 | |
| その他費用 | |
| 小学校区 | 横浜市立馬場小学校 距離:400 m |
| 中学校区 | 横浜市立上の宮中学校 距離:1280 m |
| 接道詳細 | 南西幅員5.5m |
| 設備 | |
| 備考 | 地盤調査書有;2沿線以上利用可;階建 2階建;LDK広さ 15帖以上;全居室6帖以上;ロフト;吹抜け;フローリング;全居室フローリング;複層ガラス;リビング階段;24時間換気システム;床暖房;全居室収納;納戸;クローゼット;シューズボックス;床下収納;システムキッチン;ガスコンロ;コンロ口数 三口;食器洗乾燥機;浄水器;独立洗面台;シャンプードレッサー;オートバス;追い焚き;浴室に窓;浴室乾燥機;トイレ2ヶ所;温水洗浄便座;バルコニー バルコニー有;全居室複層ガラス;TVインターホン;火災警報器(報知機);小学校 徒歩10分以内備考_80文字:2棟(1号棟) 路地状部分あり 物件シート備考:2棟(1号棟) 路地状部分あり 備考_300文字:2棟(1号棟) 路地状部分あり コピー元備考:2棟(1号棟) 路地状部分あり |