横浜市鶴見区上末吉1丁目 新築一戸建て
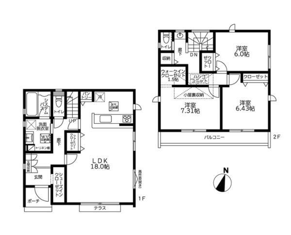
WICやSIC、パントリーや小屋裏収納など収納豊富な3LDKです。
カースペース有(車種による)路地状部分あり
▼周辺地図
| 物件名 | 横浜市鶴見区上末吉1丁目 新築一戸建て |
|---|---|
| 所在地 | 横浜市鶴見区上末吉1丁目 |
| 交通 | 京浜東北線「鶴見駅」バス9分 末吉不動前 停歩4分 |
| 交通2 | 鶴見線「鶴見駅」バス9分 末吉不動前 停歩4分 |
| 交通3 | 東急東横線「綱島駅」バス15分 末吉不動前 停歩4分 |
| 土地面積 | 102.17m² |
| 建物面積 | 100.6m² |
| 間取り | 3LDK |
| 建物構造 | 木造2階建て |
| 築年月 | 2026年11月 |
| 間取り詳細 | 1階 18帖
2階洋室 6帖 2階洋室 6.4帖 2階洋室 7.3帖 |
| 現況 | 建築中 |
| 引渡時期 | 相談 |
| 土地権利 | 所有権 |
| 私道面積 | 1.15m² |
| 都市計画 | 市街化区域 |
| 地目 | 宅地 |
| 用途地域1 | 第二種中高層住居専用地域 |
| 建ぺい率1/容積率1 | 60%/150% |
| 建ぺい率2/容積率2 | / |
| 建築確認番号 | 第25UDI1K建02666号 |
| 駐車場 | あり |
| 取引態様 | 媒介 |
| 接道状況 | 一方 |
| 町会費 | |
| その他費用 | |
| 小学校区 | 横浜市立末吉小学校 |
| 中学校区 | 横浜市立末吉中学校 |
| 接道詳細 | 南幅員3.25m |
| 特記事項 | 建築確認対象面積101.40平米 |
| 設備 | 都市ガス |
| 備考 | 閑静な住宅地;地盤調査書有;南側道路面す;2沿線以上利用可;階建 2階建;LDK広さ 18帖以上;全居室6帖以上;ガス 都市ガス;フローリング;複層ガラス;24時間換気システム;クローゼット;ウォークインクローゼット;シューズインクローゼット;床下収納;屋根裏収納;システムキッチン;カウンターキッチン;ガスコンロ;コンロ口数 三口;パントリー;食器洗乾燥機;浄水器;独立洗面台;シャンプードレッサー;オートバス;追い焚き;TV付バス;浴室乾燥機;トイレ2ヶ所;温水洗浄便座;バルコニー バルコニー有;全居室複層ガラス;TVインターホン;カードキー;火災警報器(報知機)備考_80文字:路地状部分あり 物件シート備考:カースペース有(車種による)路地状部分あり 備考_300文字:カースペース有(車種による)路地状部分あり コピー元備考:カースペース有(車種による)路地状部分あり |