藤沢市辻堂3丁目 新築一戸建て
江ノ島・富士山を望め眺望・日当たり良好。将来分割可能な洋室あり。主寝室には広いウォークインクローゼットがあり収納豊富。
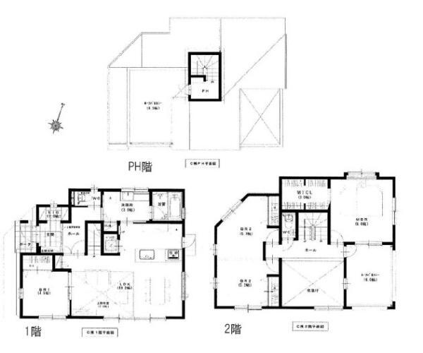
3棟(C棟) カースペース2台分有(車種による)
▼周辺地図
| 物件名 | 藤沢市辻堂3丁目 新築一戸建て |
|---|---|
| 所在地 | 藤沢市辻堂3丁目 |
| 交通 | 東海道本線「辻堂駅」 徒歩10分 |
| 交通2 | 小田急江ノ島線「鵠沼海岸駅」 徒歩41分 |
| 交通3 | 小田急江ノ島線「本鵠沼駅」 徒歩44分 |
| 土地面積 | 162.78m² |
| 建物面積 | 114.25m² |
| 間取り | 3LDK |
| 建物構造 | 木造2階建て |
| 築年月 | 2026年4月 |
| 間取り詳細 | 1階 18.2帖
1階洋室 4.5帖 2階洋室 10.9帖 2階洋室 8帖 |
| 現況 | 建築中 |
| 引渡時期 | 相談 |
| 土地権利 | 所有権 |
| 都市計画 | 市街化区域 |
| 地目 | 宅地 |
| 用途地域1 | 第一種低層住居専用地域 |
| 建ぺい率1/容積率1 | 50%/80% |
| 建ぺい率2/容積率2 | / |
| 建築確認番号 | 第2025SBC-確00471M号 |
| 駐車場 | 2台 |
| 取引態様 | 媒介 |
| 接道状況 | 一方 |
| 町会費 | |
| その他費用 | |
| 小学校区 | 藤沢市立高砂小学校 |
| 中学校区 | 藤沢市立高浜中学校 |
| 接道詳細 | 南西幅員4m |
| 設備 | 都市ガス 、公営水道 、排水(下水) |
| 備考 | 地盤調査書有;2沿線以上利用可;階建 2階建;全室2面採光;日当り良好;LDK広さ 18帖以上;上水道 公営;汚水 下水道;ガス 都市ガス;フローリング;全居室フローリング;複層ガラス;駐車可能台数 2台可;リビング階段;24時間換気システム;全居室収納;クローゼット;ウォークインクローゼット;シューズボックス;シューズインクローゼット;システムキッチン;カウンターキッチン;ガスコンロ;コンロ口数 三口;浄水器;独立洗面台;シャンプードレッサー;オートバス;追い焚き;浴室に窓;浴室乾燥機;トイレ2ヶ所;温水洗浄便座;バルコニー バルコニー有;ルーフバルコニー;全居室複層ガラス;TVインターホン;火災警報器(報知機)物件シート備考:3棟(C棟) カースペース2台分有(車種による) 備考_300文字:3棟(C棟) カースペース2台分有(車種による) コピー元備考:3棟(C棟) カースペース2台分有(車種による) |