横浜市都筑区東山田1丁目 新築一戸建て
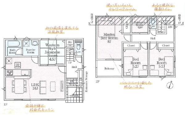
南向きバルコニー付きで陽当たり良好です。全居室収納付の4LDK。テレワークルームあり。
カースペース有 路地状部分有 別途ルーフバルコニー面積4.86平米有
▼周辺地図
| 物件名 | 横浜市都筑区東山田1丁目 新築一戸建て |
|---|---|
| 所在地 | 横浜市都筑区東山田1丁目 |
| 交通 | 横浜グリーンライン「北山田駅」 徒歩12分 |
| 交通2 | 横浜グリーンライン「東山田駅」 徒歩24分 |
| 交通3 | 横浜ブルーライン「センター北駅」 徒歩34分 |
| 土地面積 | 165.02m² |
| 建物面積 | 94.77m² |
| 間取り | 4LDK |
| 建物構造 | 木造2階建て |
| 築年月 | 2026年5月 |
| 間取り詳細 | 1階 16帖
1階和室 4.5帖 2階洋室 8帖 2階洋室 5.2帖 2階洋室 5.2帖 |
| 現況 | 建築中 |
| 引渡時期 | 相談 |
| 土地権利 | 所有権 |
| 都市計画 | 市街化区域 |
| 地目 | 宅地 |
| 用途地域1 | 第一種低層住居専用地域 |
| 建ぺい率1/容積率1 | 40%/80% |
| 建ぺい率2/容積率2 | / |
| 建築確認番号 | 第R07SHC125889号 |
| 駐車場 | あり |
| 取引態様 | 媒介 |
| 接道状況 | 一方 |
| 町会費 | |
| その他費用 | |
| 小学校区 | 横浜市立東山田小学校 距離:340 m |
| 中学校区 | 横浜市立東山田中学校 距離:780 m |
| 接道詳細 | 南幅員6m |
| 設備 | 都市ガス 、公営水道 、排水(下水) |
| 備考 | 耐震構造;制震構造;地盤調査書有;南側道路面す;前道6m以上;2沿線以上利用可;階建 2階建;外壁サイディング;日当り良好;LDK広さ 15帖以上;和室;上水道 公営;汚水 下水道;ガス 都市ガス;フローリング;複層ガラス;24時間換気システム;全居室収納;収納スペース;クローゼット;シューズボックス;床下収納;システムキッチン;カウンターキッチン;ガスコンロ;コンロ口数 三口;浄水器;独立洗面台;シャンプードレッサー;オートバス;追い焚き;浴室に窓;浴室乾燥機;トイレ2ヶ所;温水洗浄便座;バルコニー バルコニー有;南面バルコニー;省エネラベル;人感センサー付照明;全居室複層ガラス;TVインターホン;ディンプルキー;火災警報器(報知機);小学校 徒歩10分以内物件シート備考:カースペース有 路地状部分有 別途ルーフバルコニー面積4.86平米有 備考_300文字:カースペース有 路地状部分有 別途ルーフバルコニー面積4.86平米有 コピー元備考:カースペース有 路地状部分有 別途ルーフバルコニー面積4.86平米有 |