藤沢市善行2丁目 新築一戸建て
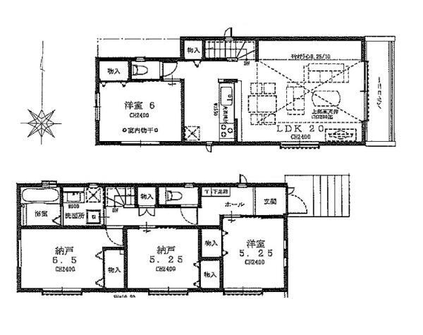
明るさと開放感のある2階リビングプラン。2階リビングは人の目も気にならない寛ぎの住空間です。
3棟(3号棟) カースペース有
▼周辺地図
| 物件名 | 藤沢市善行2丁目 新築一戸建て |
|---|---|
| 所在地 | 藤沢市善行2丁目 |
| 交通 | 小田急江ノ島線「善行駅」 徒歩5分 |
| 交通2 | 小田急江ノ島線「六会日大前駅」 徒歩28分 |
| 交通3 | 小田急江ノ島線「藤沢本町駅」 徒歩30分 |
| 土地面積 | 100.68m² |
| 建物面積 | 100.19m² |
| 間取り | 2SLDK |
| 建物構造 | 木造2階建て |
| 築年月 | 2026年7月 |
| 間取り詳細 | 1階 6.5帖
1階 5.2帖 1階洋室 5.2帖 2階 20帖 2階洋室 6帖 |
| 現況 | 建築中 |
| 引渡時期 | 相談 |
| 土地権利 | 所有権 |
| 都市計画 | 市街化区域 |
| 地目 | 宅地 |
| 用途地域1 | 第一種低層住居専用地域 |
| 建ぺい率1/容積率1 | 60%/100% |
| 建ぺい率2/容積率2 | / |
| 建築確認番号 | 第25UDI1K建02265号 |
| 駐車場 | あり |
| 取引態様 | 媒介 |
| 接道状況 | 一方 |
| 町会費 | |
| その他費用 | |
| 小学校区 | 藤沢市立善行小学校、藤沢市立大越小学校 |
| 中学校区 | 藤沢市立善行中学校 |
| 接道詳細 | 東幅員11.9m |
| 設備 | 都市ガス 、公営水道 、排水(下水) |
| 備考 | 整形地;地盤調査書有;前道6m以上;階建 2階建;LDK広さ 20帖以上;上水道 公営;汚水 下水道;ガス 都市ガス;室内物干し;フローリング;全居室フローリング;複層ガラス;リビング階段;24時間換気システム;全居室収納;収納スペース;納戸;クローゼット;シューズボックス;システムキッチン;カウンターキッチン;ガスコンロ;コンロ口数 三口;食器洗乾燥機;浄水器;独立洗面台;シャンプードレッサー;オートバス;追い焚き;浴室に窓;浴室乾燥機;トイレ2ヶ所;温水洗浄便座;バルコニー バルコニー有;全居室複層ガラス;TVインターホン;火災警報器(報知機)備考_80文字:3棟(3号棟) カースペース有 物件シート備考:3棟(3号棟) カースペース有 備考_300文字:3棟(3号棟) カースペース有 コピー元備考:3棟(3号棟) カースペース有 |