町田市金井1丁目 新築一戸建て
| 物件名 | 町田市金井1丁目 新築一戸建て |
|---|---|
| 所在地 | 町田市金井1丁目 |
| 交通 | 横浜線「町田駅」バス14分 薬師池 停歩6分 |
| 交通2 | 小田急小田原線「町田駅」バス14分 薬師池 停歩6分 |
| 交通3 | 小田急小田原線「玉川学園前駅」 徒歩29分 |
| 土地面積 | 125.05m² |
| 建物面積 | 104.28m² |
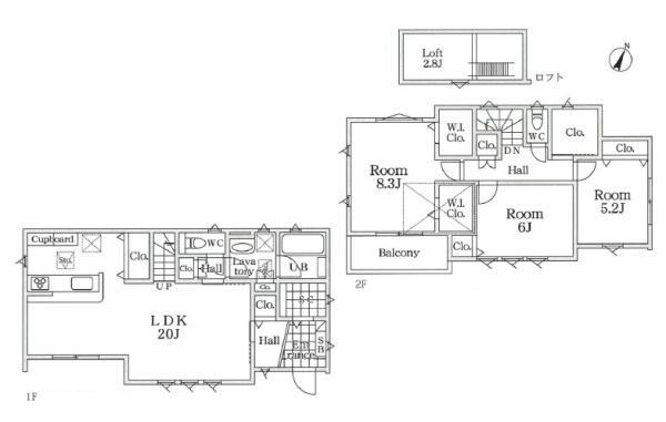
| 間取り | 3LDK |
| 建物構造 | 木造2階建て |
| 築年月 | 2026年6月 |
| 間取り詳細 | 1階 20帖
2階洋室 8.3帖 2階洋室 6帖 2階洋室 5.2帖 |
| 現況 | 建築中 |
| 引渡時期 | 相談 |
| 土地権利 | 所有権 |
| 都市計画 | 市街化区域 |
| 地目 | 宅地 |
| 用途地域1 | 第一種中高層住居専用地域 |
| 建ぺい率1/容積率1 | 50%/100% |
| 建ぺい率2/容積率2 | / |
| 建築確認番号 | 第KBI-SGM25-10-5166号 |
| 取引態様 | 媒介 |
| 接道状況 | 一方 |
| 町会費 | |
| その他費用 | |
| 小学校区 | 町田市立藤の台小学校 距離:480 m |
| 中学校区 | 町田市立薬師中学校 距離:560 m |
| 接道詳細 | 南東幅員4m |
| 設備 | 都市ガス 、公営水道 、排水(下水) |
| 備考 | 地盤調査書有;2沿線以上利用可;階建 2階建;部屋向き 全室南東向き;LDK広さ 20帖以上;ロフト;上水道 公営;汚水 下水道;ガス 都市ガス;フローリング;全居室フローリング;複層ガラス;シャッター雨戸;リビング階段;24時間換気システム;全居室収納;クローゼット;ウォークインクローゼット;シューズボックス;シューズインクローゼット;床下収納;システムキッチン;カウンターキッチン;ガスコンロ;コンロ口数 三口;食器洗乾燥機;浄水器;独立洗面台;シャンプードレッサー;オートバス;追い焚き;浴室に窓;浴室乾燥機;トイレ2ヶ所;温水洗浄便座;バルコニー バルコニー有;南面バルコニー;省エネラベル;全居室複層ガラス;TVインターホン;火災警報器(報知機);スーパー 徒歩10分以内;小学校 徒歩10分以内 |