横浜市戸塚区深谷町 新築一戸建ての物件詳細
| 販売価格 | 所在地/交通 | 土地面積/間取 |
|---|---|---|
| 3,980万円(税込) | 横浜市戸塚区深谷町 |
126.89m²(38.38坪) 3LDK |
【横浜市戸塚区深谷町の新築一戸建ての物件概要】
| 所在地 | 横浜市戸塚区深谷町 | ||
|---|---|---|---|
| 交通 | 東海道本線「戸塚駅」バス14分 三叉路 停歩5分 | ||
| 交通2 | 横浜ブルーライン「戸塚駅」バス14分 三叉路 停歩5分 | ||
| 交通3 | 横須賀線「戸塚駅」バス14分 三叉路 停歩5分 | ||
| 総戸数 | 販売戸数 | ||
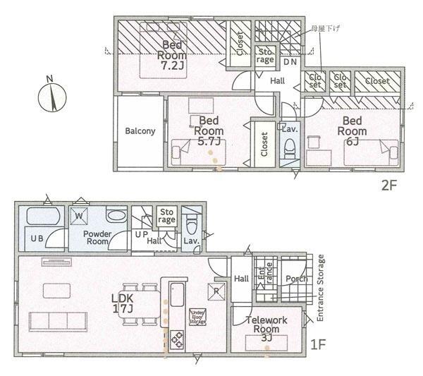
| 土地面積 | 126.89m²(38.38坪) | 建物面積 | 97.2m²(29.40坪) |
| 間取り | 3LDK | 建物構造 | 木造2階建て |
| 間取詳細 | |||
| 築年月 | 2026年1月築 | 用途地域 | 第一種低層住居専用地域 |
| 私道面積 | 10.68m² | 接道状況 | 一方 東4m |
| 容積率 | 80% | 建ぺい率 | 50% |
| 駐車場 | 2台 | 現況 | 建築中 |
| 引渡時期 | 相談 | 土地権利 | 所有権 |
| 小学校区 | 横浜市立俣野小学校、横浜市立深谷台小学校、横浜市立深谷小学校、横浜市立大正小学校 距離:263 m | 中学校区 | 横浜市立大正中学校、横浜市立深谷中学校 距離:325 m |
| 設備 | 都市ガス 、公営水道 、排水(下水) | 建築確認番号 | 第R07SHC117442号 |
| 取引態様 | 媒介 | 物件番号 | 111562435001 |
| 備考 | 地盤調査書有;2沿線以上利用可;階建 2階建;LDK広さ 15帖以上;上水道 公営;汚水 下水道;ガス 都市ガス;フローリング;全居室フローリング;複層ガラス;駐車可能台数 2台可;24時間換気システム;クローゼット;シューズボックス;床下収納;システムキッチン;カウンターキッチン;ガスコンロ;コンロ口数 三口;浄水器;独立洗面台;シャンプードレッサー;オートバス;追い焚き;浴室に窓;浴室暖房;浴室乾燥機;トイレ2ヶ所;温水洗浄便座;バルコニー バルコニー有;人感センサー付照明;全居室複層ガラス;TVインターホン;火災警報器(報知機);小学校 徒歩10分以内備考_80文字:全2棟(1号棟) カースペース2台分有 協定地2.05平米含む 物件シート備考:全2棟(1号棟) カースペース2台分有 協定地2.05平米含む 備考_300文字:全2棟(1号棟) カースペース2台分有 協定地2.05平米含む コピー元備考:全2棟(1号棟) カースペース2台分有 協定地2.05平米含む | ||
| 特記事項 | |||
お支払い例この物件を購入した場合の月々の支払い価格の一例です。
※元利金等方式 金利0.975%の場合 ※返済年数35年として算出しています。
※金融機関の審査によりご利用頂けない場合もあります。詳しくは担当までお尋ね下さい。
この物件についてのお問い合わせはこちらから!
すぐに知りたい方はお電話でTel.0120-53-5555 営業時間9:30~20:30 毎週水曜、第1・3火曜定休
周辺環境
横浜市戸塚区の街情報
横浜市戸塚区は横浜市の南西部に位置し、面積は横浜市18区内中で最大です。 横浜駅や都内へのアクセスが良好で、JRと横浜市営地下鉄ブルーラインを利用できるため通勤や通学に便利なエリアです。 主要駅(戸塚駅・東戸塚駅)の周辺は大型商業ビルが立ち並び、買い物には困らないことも魅力の一つです。

横浜市戸塚区の行政事情(横浜市戸塚区ホームページへ)
| ごみ | 家庭ごみ回収 | 無料 |
|---|---|---|
| 資源ごみ回収奨励制度 | ○ | |
| 育児・出産 | 妊娠・出産に関する助成金 | ○ |
| 小児医療費助成 | 0歳~中学3年生 | |
| 児童手当 | 高校3年生まで(18歳到達後最初の3月31日まで) | |
| 保育所待機児童数 | 1人※令和6年4月現在 | |
| 私立幼稚園入園料・保育用補助金 | ○ | |
| 学童クラブ対象学年 平日・土曜実施時間 |
小学校1年生から6年生まで。 平日は午後7時まで。土曜日は午前8時30分~19時まで。 ※各施設により異なる |
|
| 教育資金金融/奨学金制度 | ||
| 福祉 | 健康診断/ガン診断 | 関連情報はこちら |
| 介護保険料基準額 | 6,620円 | |
| 高齢者福祉他特色 | 関連情報はこちら |
この物件についてのお問い合わせはこちらから!
すぐに知りたい方はお電話でTel.0120-53-5555 営業時間9:30?20:30 毎週水曜、第1・3火曜定休
条件の近い物件をご紹介します。
「横浜市戸塚区」「戸塚駅」の条件で他の物件を探す
現在の掲載物件数
総物件数14,607件
一般公開1,581件 会員限定13,026件
| 新築一戸建て | 5,171件 |
|---|---|
| 中古一戸建て | 3,373件 |
| 土地 | 235件 |
| マンション | 5,828件 |
| 投資・事業用 | 0件 |
現地販売会のお知らせ















